Point
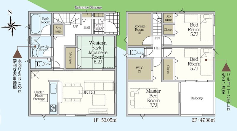
【竹島町 2号棟|4LDK+S×和室付きのゆとりある住まい】
・JR東海道本線「三河三谷」駅徒歩16分の便利な立地
・4LDK+Sのゆとりある間取りでファミリーに最適
・和室付きでお子様の遊び場や来客用スペースにも活躍
・LDK約15帖、家族の時間を大切にできる空間設計
・収納スペース豊富で季節物や日用品もすっきり整理可能
・駐車3台可能で複数台所有のご家庭にも対応
・周辺に生活施設が整い、毎日の暮らしも快適な住環境
蒲郡市竹島町第4 2号棟 の設備・周辺施設
| 主要設備 |
|
||
|---|---|---|---|
| 屋外設備 | |||
| 設備 | 3口以上コンロ、キッチンに窓、システムキッチン、浄水器、対面式キッチン、シャワー付洗面台、トイレ2ヶ所、トイレ有、バス・トイレ別、バス有、三面鏡付洗面化粧台、洗面化粧台、洗面所にドア、洗面所に窓、洗面所独立、洗面台、脱衣所、暖房便座、追い焚き風呂、風呂一坪以上、浴室に窓、浴室乾燥、浴室暖房、高機能トイレ、クローゼット4ヶ所、玄関収納、収納4ヶ所以上、床下収納、CLタンス、シューズボックス、収納有、ウォークインクローゼット、TVインターホン、複層ガラス、24時間換気システム、南面リビング、玄関ポーチ、玄関ホール、リビングの隣和室、間口8m以上、南面3室、水道(公営)、下水(公共下水) | ||
| 駐車場 | 状況:有(敷地内) 3台空きあり 特徴:並列3台可 |
||
| 特徴等 | 外壁サイディング、制震構造、耐震構造、耐風構造、劣化対策、フラット35適合証明書、フラット35S適合証明書、平坦地、地盤調査済、駅前、近隣住宅街、駅至近、閑静な住宅街、準防火地域、南面バルコニー、ベタ基礎、ホルムアルデヒド対策、メーターモジュール、建築確認完了検査済証、新築時・増改築時の設計図書 | ||
| 周辺施設 | 幼稚園:蒲郡市立府相保育園 333m 小学校:蒲郡市立竹島小学校 1118m 中学校:蒲郡市立蒲郡中学校 1790m ドラッグストア:スギ薬局 三谷北店 470m コンビニ:ミニストップ 蒲郡三谷北通店 617m ドラッグストア:ゲンキー 三谷北店 748m スーパー:サンヨネ蒲郡店 1247m 警察署・交番:蒲郡警察署三谷交番 814m 郵便局:三谷郵便局 922m 歯科:やました歯科医院 198m |
||
お問い合わせ番号
41447
蒲郡市竹島町第4 2号棟 の費用・契約情報
| 価格 | 2490万円 | ||
|---|---|---|---|
| ほか諸費用 | |||
| 入居条件 | 引渡時期 | 期日指定 2026年7月 | |
| 備考 | |||
蒲郡市竹島町第4 2号棟 の物件詳細
| 物件名 | 蒲郡市竹島町第4 2号棟 | ||
|---|---|---|---|
| 所在地 | 愛知県蒲郡市 竹島町661-1、662 ② | ||
| 交通 | 東海道本線(東海) 三河三谷駅 徒歩14分 東海道本線(東海) 蒲郡駅 徒歩20分 東海道本線(東海) 三河塩津駅 徒歩47分 |
||
| 物件種別 | 戸建 | 構造 | 木造 |
| 募集種別 | 戸建 | 築年月 | 2026年6月 完成予定 |
| 管理形態 | 間取り | 4SLDK | |
| 建物面積 | 100.43㎡(登記簿) | 建物状況 | 新築 |
| 造成完了時期 | リフォーム | ||
| 施工 | 建築許可番号 | ||
| 建築確認番号 | 第HPA-26-02420-1号 | 土地面積/坪 | 146㎡(公簿)/ 44.16坪 |
| 土地の権利形態 | 所有権 | ||
| 建ぺい率/容積率 | 60% / 200% | 接道 | 東4m公道 |
| 私道負担 |
|
地勢 |
平坦 |
| 用途地域 | 準工業地域 | 地目 | 宅地 |
| その他制限事項 | 市街化区域 | ||
- ※間取りの「S」はサービスルーム(納戸)です。
- ※現況と異なる場合には現況を優先します。
- ※建築条件付き宅地につきましては、土地売買契約締結後3カ月以内に住宅を建築しないことが確定したとき、または住宅の建築請負契約が成立しなかった場合は、土地売買契約は無効となり 受領した金額は全額無利息でお返しします。
蒲郡市竹島町第4 2号棟 のその他の情報
| 取引態様 | 媒介(仲介) | ||
|---|---|---|---|
| 自社管理番号 | 41447 | 物件管理コード | 2107536223300000004115 |
| 情報更新日 | 2026年04月19日 | 次回更新日 | 2026年05月19日 |
蒲郡市竹島町第4 2号棟 の広告主情報
| 店舗名称 | 丸七住宅株式会社 | 事務所の所在地 | 愛知県蒲郡市神明町8番11号 |
|---|---|---|---|
| 電話番号 | 0120-07-1645 | 宅建免許番号 | 愛知県知事(13)第9152号 |
| 加盟団体名 | 愛知県宅地建物取引協会 | ||
